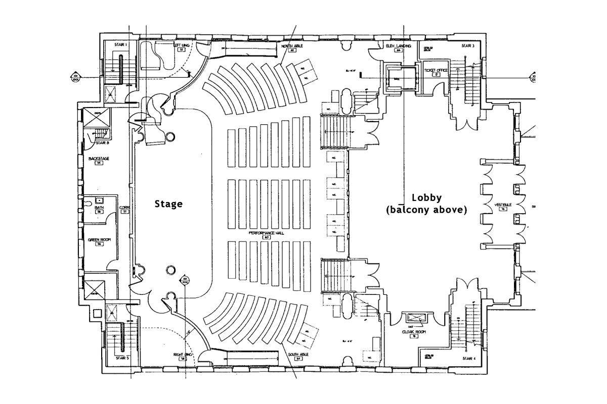
Download Schematics (PDF) Nichols Concert Hall About Nichols Concert Hall Facility Rental + Recording Hall Schematics Plan Your Visit Nichols Concert Hall Presents Resident Ensembles